Construction d’un local cuisine
La cuisine pour la cantine est assurée par des mamans bénévoles du village.
Trois grosses marmites de 45l sont nécessaires pour cuire le riz quotidiennement.
Faute de local, cette cuisine s'effectuait au début en extérieur.
En 2019, la décision a été prise de construire un petit bâtiment pour permettre de cuisiner à l'abri en cas de mauvais temps.
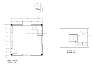
Local cuisine
Plan du local :

Construction du bâtiment :

Le local terminé :

Utilisation hors période cantine
Le local cuisine est utilisé comme salle de classe hors période de cantine.
Ceci est dû au manque de place et au mauvais état de la vieille école.
